Eigentumswohnung – Apartments – Gewerbe: Vielseitig nutzbare Einheit Nähe Dickhäuterplatz

76275 Ettlingen, Souterrainwohnung zum Kauf

Referenz

Dieses Objekt wurde bereits erfolgreich vermittelt.

Objekt­beschreibung

Beschreibung

Modernisierungsprofis aufgepasst - hier lässt sich was draus machen:
Sehr gut gelegene Wohn- / Gewerbeeinheit in Ettlingen Nähe Dickhäuterplatz, bislang gewerblich genutzt und umbaubar in eine 4-Zimmer-ETW bzw. ggf. unterteilbar in zwei 2-Zimmer-Apartements

Folgen Sie unserem 360°-Rundgang:
https://my.matterport.com/show/?m=KeQ8Mt11wDH

Oder noch besser: erleben Sie diese Immobilie live vor Ort bei einer Besichtigung:

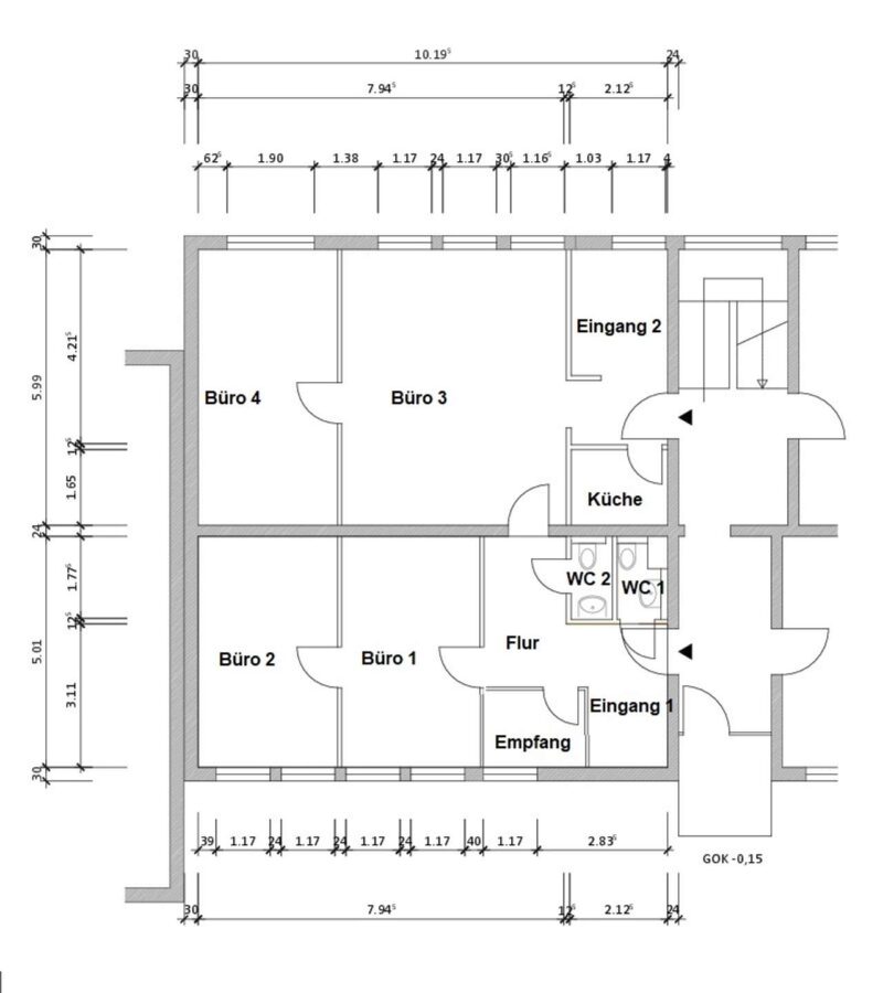
Die sanierungsbedürftige und bislang für Bürozwecke verwendete Gewerbeeinheit befindet sich im Souterrain einer gepflegten Wohnanlage mit 11 Einheiten aus dem Baujahr 1970. Die Nutzfläche liegt bei rund 104 m² und verteilt sich auf 4 Räume zzgl. Empfang, Küche und Toiletten.

Die baurechtliche Genehmigung zur Umnutzung in eine 4-Zimmerwohnung liegt vor, ebenso die Zustimmung der weiteren Miteigentümer im Haus. Da das Büro über zwei separate Zugänge verfügt, könnte es auch zu 2 Wohneinheiten zu je 2 Zimmern separiert werden.

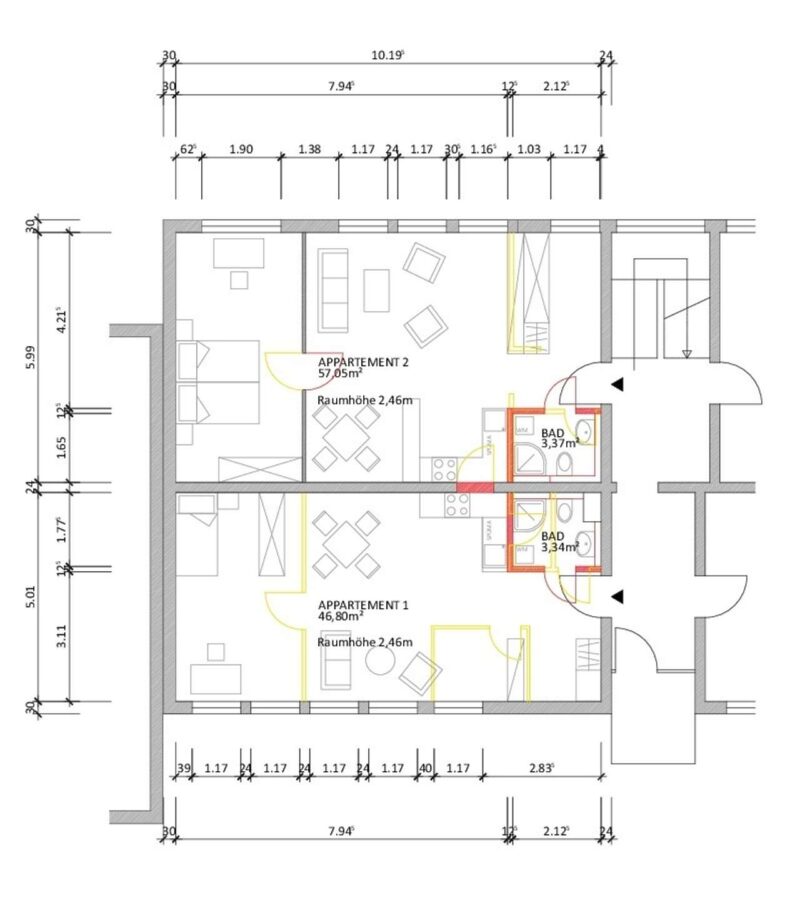
Eine Architektenplanung mit folgendem Raumprogramm liegt bereits vor (siehe Grundriss):
a) 2-Zimmer-Apartment 1 (ca. 47 m² Wfl. laut Architektenplanung):
Offenes Wohn- und Esszimmer mit integrierter Einbauküche, separates Schlafzimmer, Duschbad mit WMA und WC
b) 2-Zimmer-Apartment 2 (ca. 57 m² Wfl. laut Architektenplanung):
Offenes Wohn- und Esszimmer mit integrierter Einbauküche, separates Schlafzimmer, Duschbad mit WMA und WC

Zur Wohnung gehören zudem ein großes und ein kleineres Kellerabteil sowie das Sondernutzungsrecht an einem Außenstellplatz vor dem Gebäude.

Im Haus befinden sich weiterhin ein gemeinsamer Waschraum mit Waschmaschinenanschluss und ein Fahrradkeller.

Das Hausgeld umfasst sowohl die umlagefähigen Nebenkosten inkl. Hausreinigung und Gartenpflege als auch die nicht umlagefähigen Nebenkosten wie Rücklagenanteil, Verwaltergebühr usw.

Ausstattung

- Teppichbodenbelag
- Zur Hauseingangsseite weiße Kunststofffenster aus 2019, zur Rückseite ältere Holzfenster
- Fensterbänke aus Naturstein
- Weiße Holztüren
- 2 getrennte WCs
- Ältere Einbauküche
- Hauseingangstüre mit Klingel- und Briefkastenanlage aus 2015
- Großes Kellerabteil
- Fahrradkeller und Trockenraum im Haus

Sonstige Informationen

Verkaufspreis Einheit Nr. 01: € 249.000,- inkl. Keller Nr. 01
zzgl. Außenstellplatz Nr. 01: € 6.000,-
= € 255.000,- gesamt

Hausgeld / Monat: € 411,- (davon € 104,- Rücklagenanteil)

Besichtigung: nach Vereinbarung

Die Vermittlungsprovision beträgt für den Käufer 3,57 % vom beurkundeten Gesamtkaufpreis inkl. MwSt. Ferner haben wir einen provisionspflichtigen Vermarktungsauftrag mit dem Verkäufer in selber Höhe abgeschlossen.

Die Objektdaten basieren auf Verkäuferinformationen. Alle Angaben ohne Gewähr.

Energieausweisart: Verbrauchsausweis
Gebäudetyp: Wohngebäude
Baujahr laut Energieausweis: 1970
Heizungsart: Zentralheizung
Befeuerung: Gas
Energiekennwert: 109 kWh/(m²*a)
Energieeffizienzklasse: D
Datum Energieausweis: 17.10.2018
Gültig bis: 17.10.2028

Lage

Ruhiges und gehobenes Wohngebiet am unmittelbaren Stadtrand von Ettlingen in verkehrsgünstiger Lage in Nachbarschaft zum ehemaligen Kasernengelände, zu den Feldern und Wiesen sowie zum Wattkopfgebiet. Eine ganze Reihe von Sport- und Outdooraktivitäten lassen sich somit quasi von der Haustüre aus starten.

Der Deutsch-Französische Kindergarten "St. Vincentius II" befindet sich in unmittelbarer Nähe.

Zum Dickhäuterplatz mit Gymnasium, Gastronomie, Ärztezentrum, Apotheke, Bushaltestelle "Am Lindscharren" usw. sind es rund 5 Gehminuten. Und auch zum nächsten Supermarkt sind es nur einige Schritte mehr. In die Altstadt sind es dann ca. 15 Minuten.

Eine weitere Bushaltestelle "Friedhof" in Fahrtrichtung Durlach ist ebenfalls etwa 5 Minuten entfernt.

Schnelle PKW-Anbindung zum Autobahnanschluss Ettlingen / Rüppurr und zur B3 Richtung Durlach.

Die dargestellte Position der Immobilie ist nur eine ungefähre Angabe.

WordPress Cookie Plugin von Real Cookie Banner