HIGHLIGHT: Helle 5-Zi-Maisonette-ETW mit Dachterrasse und Doppelgarage, Bruchhausen

76275 Ettlingen, Maisonettewohnung zum Kauf

Referenz

Dieses Objekt wurde bereits erfolgreich vermittelt.

Objekt­beschreibung

Beschreibung

Großzügig Wohnen, auf Balkon und Dachterrasse entspannen und den herrlichen Ausblick genießen!

Folgen Sie unserem 360°-Rundgang:
https://my.matterport.com/show/?m=LCEaZUKXepm

Oder noch besser, kommen Sie zur Besichtigung und erleben Sie diese Immobilie live vor Ort:

Die wunderschöne, lichtdurchflutete Maisonettewohnung mit Süd-West-Balkon und Dachterrasse in Nord-West-Ausrichtung befindet sich im DG eines 5-FH aus dem Baujahr 1973 und erstreckt sich über 2 Wohnebenen.

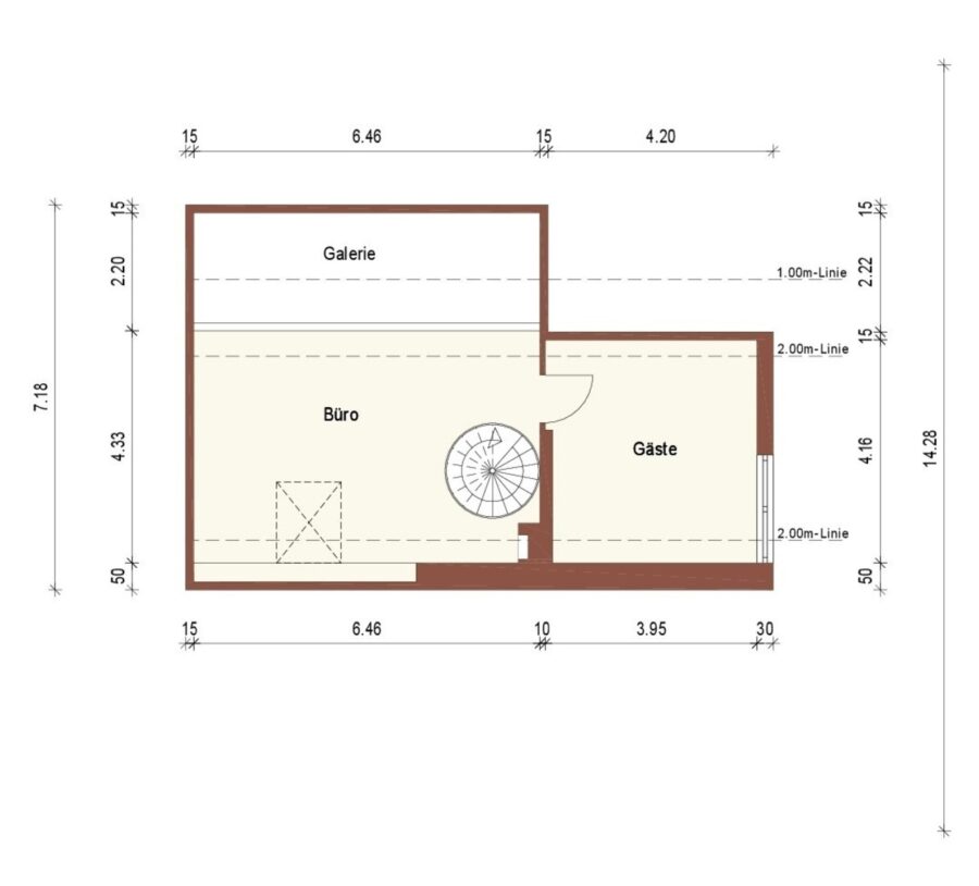
Die erste Wohnebene mit rund 101 m² verwöhnt mit einem offenen und familiären Raumprogramm.
Highlight ist der Wohn- / Essbereich mit großflächigen Tür- / Fensterelementen zur Dachterrasse mit schönem Ausblick und praktischen Abstellraum für Grill und Mobiliar.
Auf gleicher Ebene sind ein Schlafzimmer mit Balkon, ein Kinderzimmer, ein Tageslichtbad mit Dusche, Badewanne und WC, die Küche (EBK) mit angrenzendem Hauswirtschaftsraum und ein Gäste-WC im Eingangsbereich.

Über eine Holz-Wendeltreppe im Wohnzimmer erreichen Sie die offene Galerie der Ebene 2 mit Blick über Wohnzimmer und Terrasse. Ein weiteres Schlaf- bzw. Gästezimmer schließt sich an. Insgesamt liegt die Wohnfläche der oberen Ebene bei etwa 38 m².

Zur Wohnung gehören zudem ein Kellerraum, ein beheizter Hobbyraum (exklusiv) sowie eine Doppelgarage. Da sich diese unter dem Gebäude befindet, bietet sie einen direkten Zugang ins Treppenhaus. Ferner kann vor den Garagen in der Hofabfahrt geparkt werden, so dass quasi 2 Stellplätze im Freien zusätzlich vorhanden sind.

Ausstattung

  • Schlafzimmer Mosaikparkett, sonstige Wohnräume Teppichbodenbelag,
  • Badezimmer raumhoch gefliest mit Wanne, Dusche, Waschbecken, WC, Einbauschrank
  • Gäste-WC ebenfalls gefliest
  • Küche mit PVC-Boden, Retro-Fliesenspiegel, älterer Einbauküche, raumhohen Einbauschrank zwischen Küche und Wohnzimmer mit praktischer Durchreiche (Schrank beidseitig nutzbar) sowie praktischen Schiebetüren zum Hauswirtschaftsraum (HWR) und zum Flur
  • HWR ebenso mit PVC-Belag sowie WMA
  • Einbauschränke in Flur und Dachschrägen
  • Innentüren aus Holz in braun, Türrahmen in weiß
  • Holz-Wendeltreppe zwischen beiden Wohnebenen
  • Holzdecken
  • Holz-Iso-Fenster, teilweise 2004 erneuert
  • Roto Kunststoff-DFF aus 2019
  • Dachterrasse in Nord-West-Ausrichtung mit elektr. Markise und Abstellraum
  • Balkon in Süd-West-Ausrichtung 2017 saniert mit Edelstahlgeländer
  • Doppelgarage (innenliegend im KG)
  • Eigener Kellerraum sowie zusätzlich beheizter Hobbyraum mit Tageslicht
  • Massivhaus Bj. 1973 in Hochlochziegel
  • Südwestfassade mit vorgehängter Fassade, andere Fassaden 2006 mit 100 mm Wärmedämmverbundsystem
  • Öl-Zentralheizung Bj. 1995
  • Gemeinsame SAT-Anlage
  • Hausmeisterservice mit Winterdienst

Sonstiges

Verkaufspreis ETW: € 360.000,- inkl. Garagen und Ausstattung

Monatliches Hausgeld: € 598,-
(Umlagefähige Kosten + Nicht umlagefähige Kosten + Rücklagen)

Bezugsfrei: ab sofort
Besichtigung: nach Vereinbarung

Die Vermittlungsprovision beträgt für den Käufer 3,57 % vom beurkundeten Kaufpreis inkl. MwSt. Ferner haben wir einen provisionspflichtigen Vermarktungsauftrag mit dem Verkäufer in selber Höhe abgeschlossen.

Energieausweisart: Bedarfsausweis
Gebäudetyp: Wohngebäude
Baujahr laut Energieausweis: 1973
Baujahr Anlagentechnik: 1995
Heizungsart: Zentralheizung
Befeuerung: Öl
Energiekennwert: 97.4 kWh/(m²*a)
Energieeffizienzklasse: C
Datum Energieausweis: 05.10.2014
Gültig bis: 04.10.2024

Die Objektdaten basieren auf Verkäuferinformationen. Alle Angaben ohne Gewähr.

Lage

Ruhige und gefragte Wohnlage in Ettlingen-Bruchhausen. Einkaufsmöglichkeiten (CAP-Markt, Netto, Bäckereien, Apotheke, etc.), Kindergärten und Grund- / Hauptschule im Ort vorhanden.

Gute Verkehrsanbindung mit dem Auto über die B3-Umgehung zur Autobahn bzw. nach Karlsruhe oder Rastatt. Nach Ettlingen über die "alte B3" ca. 4 km.

Zur nächsten Bushaltestelle "Oberfeld" ca. 6 Gehminuten, von dort mit dem Bus nach Ettlingen und weiter mit der S-Bahn nach Karlsruhe.
Alternative: zur S-Bahnhaltestelle "Bruchhausen Bahnhof" (ca. 10 Gehminuten), von dort Direktverbindung zum HBF Karlsruhe oder nach Rastatt.

Die dargestellte Position der Immobilie ist nur eine ungefähre Angabe.

WordPress Cookie Plugin von Real Cookie Banner