Viel Platz zum Entfalten: Großzügiges 2-Familienhaus in ruhiger Lage, KA-Daxlanden

76189 Karlsruhe, Doppelhaushälfte zum Kauf

Referenz

Dieses Objekt wurde bereits erfolgreich vermittelt.

Objekt­beschreibung

Beschreibung

Raumwunder: Vielseitig nutzbares und komplett frei verfügbares 2-FH mit großem Gartengrundstück, Terrasse und Garage, Karlsruhe-Daxlanden

Folgen Sie unserem 360°-Rundgang:
https://my.matterport.com/show/?m=kU8Q9hyTbAD

Oder noch besser, kommen Sie zur Besichtigung und erleben Sie diese Immobilie mit wunderschönem Grundstück live vor Ort:

Das gepflegte Anwesen mit rückseitigem Garten stammt aus dem Baujahr 1967 und befindet sich auf einem 517 m² großen Grundstück. Es wird mittels einer Öl-Zentralheizung aus dem Baujahr 2010 beheizt.

Die gesamte Wohnfläche von rund 173 m² verteilt sich auf drei Etagen und bietet Platz für 2 Familien. Es lassen sich vielfältige Nutzungskonzepte realisieren wie ein Mehrgenerationenwohnen oder eine Teilvermietung.

So befindet sich im Erdgeschoss neben der Küche, einem Gäste-WC und einer Abstellkammer ein großzügiger Wohn- und Essbereich, der sich bei Bedarf auch unterteilen lässt. Über die Terrasse gelangen Sie über ein paar Stufen hinab in den Innenhof mit überdachtem Sitzbereich sowie den gepflegten Garten. Mit seinem Bestand an etlichen Obstbäumen sowie weiteren Nutz- und Zierpflanzen lädt er zum Verweilen und Entspannen ein. Gleichzeitig finden Klein und Groß viel Platz für jede Menge Freizeitaktivitäten.

Das Obergeschoss verfügt über ein Schlaf- und zwei Kinderzimmer sowie einen großen Balkon mit Blick ins Grüne. Zusätzlich stehen dort ein großes Tageslichtbadezimmer mit Badewanne, Dusche und ein separates WC zur Verfügung.

Das Dachgeschoss bietet 2 Schlafzimmer, ein Wohn- / Esszimmer mit offenem Küchenbereich inkl. EBK und Zugang zum Balkon sowie ein Duschbad mit WC.

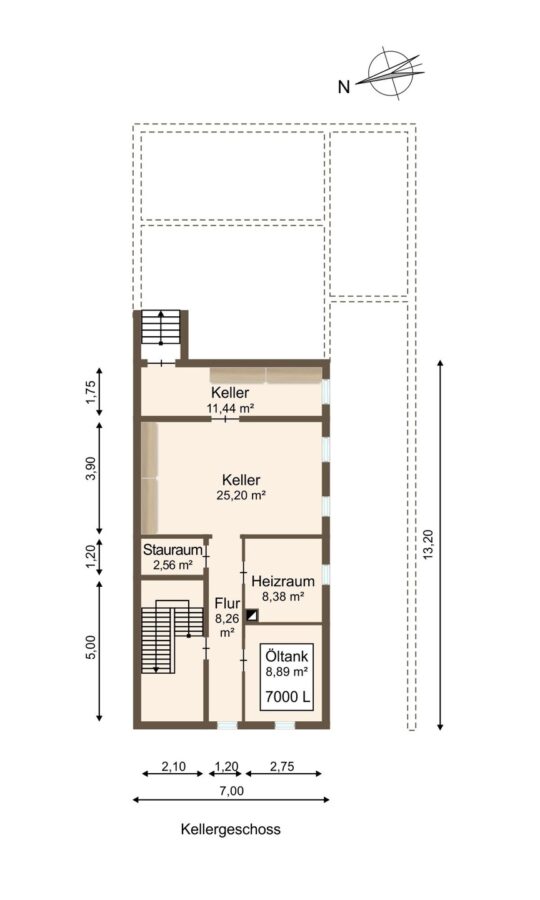
Der Keller verfügt über einen großen Kellerraum, den Heizungskeller, einen Tankraum sowie eine kleine Werkstatt mit Werkbank, Vorratskammer mit eingebautem Safe. Eine Außentreppe führt in den Innenhof.

Raumprogramm:
EG (ca. 65 m²): Großzügiges Wohn-/ Esszimmer mit Terrasse und Zugang in den Innenhof & Garten, Küche, Gäste-WC, Abstellkammer, Balkon, Terrasse, Innenhof mit überdachtem Sitzbereich, Garten. Garage, Geräteschuppen

OG (ca. 63 m²): Schlafzimmer, zwei Kinderzimmer, Balkon, Tageslichtbad mit Wanne und Dusche, separates WC, Balkon

DG (ca. 45 m²): Zwei Schlafzimmer, offener Wohnbereich mit Küche, Balkon, Tageslichtbad mit Dusche und WC

Einzelgarage mit angrenzendem Geräteraum und Gartenzugang. 1–2 Stellplätze im Hofbereich vor der Garage.

Ausstattung

Modernisierungen

  • 90er: EG Küche, WC und Bad OG neu
  • 1993: Weru Kunststoff-Iso-Fenster (2-Fach verglast) in DG
  • 1998: Weru-Kunststoff-Iso-Fenster (2-Fach verglast) in EG +DG: Straßenseite sowie Treppenhaus
  • 2010: Kunststoff-Iso-Fenster (2-Fach verglast) in EG + DG: Wohn- und Schlafzimmer
  • Modernisierte Velux-DFF (in Küche mit el. Rollladen, im Kinderzimmer mit man. Rollladen)
  • 1998: Neue Weru-Haustüre mit Seitenelement
  • ca. 2008: Wasserleitung von OG ins KG neu
  • 2010: neue Wohnungseingangstüren
  • 2010: neue Öl-Zentralheizung
  • 2010: Isolierung Kellerdecken sowie Speicherboden
  • 2023: Kellerabdichtungen (Fa. Isotec)

Sonstiges

  • 2 Kraniche an der Fassade (von der Majolika-Manufaktur, Karlsruhe)
  • Parkettboden, Fliesen, Klinker und PVC-Beläge
  • Bäder und Küche gefliest
  • Tageslichtbadezimmer mit Dusche und Badewanne im OG, Tageslichtbad im DG mit Dusche
  • Geschützter Terrassenbereich mit Markise sowie teilüberdachter Innenhof
  • Keller mit Außentreppe
  • Heizöltank ca. 7000 Liter Füllvermögen
  • Rückschlagklappe Abwasser
  • Garage (zwischenzeitlich etwas verbreitert) mit erneuertem Tor inkl. el. Antrieb sowie angebauter Geräteschuppen mit Gartenzugang
  • TV-SAT-Anlage

Sonstiges

Verkaufspreis: € 549.000,- inkl. Garage und Stellplätze

Besichtigung: nach Vereinbarung

Die Vermittlungsprovision beträgt für den Käufer 3,57 % vom beurkundeten Gesamtkaufpreis inkl. MwSt. Ferner dürfen wir auch für den Eigentümer provisionspflichtig tätig sein.

Die Objektdaten basieren auf Verkäuferinformationen. Alle Angaben ohne Gewähr.

Energieausweisart: Verbrauchsausweis
Gebäudetyp: Wohngebäude
Baujahr laut Energieausweis: 1967
Heizungsart: Zentralheizung
Befeuerung: Öl
Energiekennwert: 161 kWh/(m²*a)
Energieeffizienzklasse: F
Datum Energieausweis: 30.05.2023
Gültig bis: 29.05.2033

Lage

Ruhige Lage in einer Anliegerstraße in Karlsruhe Daxlanden.

Restaurants, Supermarkt, Grundschule und Geschäfte des täglichen Bedarfs im Stadtteil vorhanden und z.T. wenige Gehminuten entfernt.

Zur nächsten Bus- und S-Bahnhaltestelle mit der Linie S2 sind es rund 7 Minuten zu Fuß.

Mit dem PKW zügige Anbindung über die Südtangente (B10) in die Innenstadt und in die Pfalz sowie über die B36 nach Rastatt und Richtung Mannheim. Über die Rheinhafen- / Pulverhausstraße alternative Route nach Ettlingen und zur A5.

Die dargestellte Position der Immobilie ist nur eine ungefähre Angabe.

WordPress Cookie Plugin von Real Cookie Banner