Attraktives Ladenlokal mit 2 Ebenen & Schaufensterfront – Ettlingen Fussgängerzone

76275 Ettlingen, Verkaufsfläche zur Miete

Kontaktdaten

Gernot Günter, Immobilien Günter GmbH

Objektdaten

  • Objekt ID
    1195
  • Objekttypen
    Einzelhandel, Verkaufsfläche
  • Adresse
    76275 Ettlingen
    Baden-Württemberg
  • Gesamtfläche ca.
    169 m²
  • Verkaufsfläche ca.
    169 m²
  • Heizungsart
    Etagenheizung
  • Wesentlicher Energieträger
    Gas
  • Baujahr
    1987
  • Verfügbar ab
    nach Vereinbarung
  • Provisionspflichtig
    Ja
  • Mieter­provision (gewerblich)
    2 Monatsmieten zzgl. MwSt.
    Die Vermittlungsprovision beträgt für den Mieter 2 Monatsmieten zzgl. MwSt.
  • Kaltmiete
    2.500,00 EUR
  • Nebenkosten
    150,00 EUR

Energieausweis

  • Energieausweistyp
    Verbrauchs­ausweis
  • Ausstellungsdatum
    08.09.2025
  • Gültig bis
    07.09.2035
  • Gebäudeart
    Nichtwohngebäude
  • Baujahr
    1987
  • Primärenergieträger
    Gas
  • Endenergie­verbrauch Strom
    27,50 kWh/(m²·a)
  • Endenergie­verbrauch Wärme
    126,70 kWh/(m²·a)
  • Warmwasser enthalten
    ja
0 25 50 75 100 125 150 175 200 225 250+ H G F E D C B A A+ H G F E D C B A A+ Endenergieverbrauch Strom 27,50 kWh/(m²·a) Endenergieverbrauch Wärme 126,70 kWh/(m²·a)

Objekt­beschreibung

Beschreibung

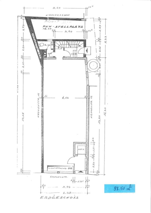
Dieses vielseitig nutzbare Ladengeschäft bietet rund 169 m² Gesamtfläche und befindet sich in einem gepflegten Geschäftshaus, das 1987/88 neu errichtet wurde.

Die Verkaufsräume verteilen sich auf ca. 93 m² im Erdgeschoss sowie weitere 76 m² im Untergeschoss. Die Gesamtfläche umfasst ebenfalls etwa 15 m² für Sozial- und Technikräume.

Der ebenerdige Eingangsbereich mit großflächiger Schaufensterfront garantiert hohe Sichtbarkeit und Kundenfrequenz. Der Zugang ins Untergeschoss erfolgt über eine innenliegende Treppe im Rückbereich. Bei Bedarf kann auch ein Fahrstuhl am Eingang benutzt werden.

Damit eignet sich die Fläche optimal für flexible Nutzungsmöglichkeiten wie Einzelhandel, Studio, Büro oder Praxis – ideal für Unternehmen, die Wert auf gute Erreichbarkeit, einen zentralen Standort, helle Räume und hohe Sichtbarkeit legen.

Ein Friseursalon befindet sich bereits im Haus – für diesen Bereich besteht daher ein Konkurrenzschutz.

Hinweis: Die Fotos entstammen der jetzigen Nutzung als Modegeschäft

Ausstattung

✨ Ausstattung & Highlights

✔ Helle und freundliche Verkaufsräume
✔ Großzügige Schaufensterfront (2-geteilt)
✔ Sozialräume im EG (Teeküche, WC etc.)
✔ Strapazierfähiger Laminatboden in Gewerbequalität im EG
✔ Heller Linoleumboden im UG
✔ Abgehängte Decke mit integrierter Beleuchtung & Spot-Strahlern im EG
✔ Verschiebbare Spot-Strahler auf Schienensystem im UG
✔ Gas-Etagenheizung
✔ Praktische Regalsysteme in Verkaufs- und Lagerräumen (können vom Vormieter übernommen werden)
✔ Gute Erreichbarkeit durch interne Treppe und Fahrstuhl

Sonstige Informationen

Diese Ladenfläche in zentraler Innenstadtlage bietet ideale Voraussetzungen für Verkauf, Dienstleitung und Repräsentanz.

Kontaktieren Sie uns noch heute für weitere Informationen sowie einen Besichtigungstermin!
📧 info@immobilien-guenter.de, Gernot Günter, Immobilien Günter

📄 Mietkonditionen

Miete pro Monat: 2.500,- €
Nebenkosten-Vorauszahlung pro Monat: 150 €
Gebühren für Wasser/Abwasser, Heizung, Müll und Strom gehen separat.

Mietbeginn: 01.01.2026 oder früher

Die Vermittlungsprovision beträgt für den Mieter 2 Monatsmieten.

Alle Beträge sind Netto-Beträge und verstehen sich zzgl. der gesetzlichen MwSt.

Besichtigung: nach vorheriger Terminabsprache

Alle Angaben ohne Gewähr. Die Objektdaten beruhen auf Vermieterinformationen.

⚡ Energieausweis

Energieausweisart: Verbrauchsausweis
Gebäudetyp: Nichtwohngebäude
Baujahr laut Energieausweis: 1987
Heizungsart: Etagenheizung
Befeuerung: Gas
Energiekennwert Wärme: 126,70 kWh/(m²*a)
Energiekennwert Strom: 27,50 kWh/(m²*a)
Datum Energieausweis: 08.09.2025
Gültig bis: 07.09.2035

Lage

📍 Lage – Ettlingen Innenstadt

Die Gewerbefläche liegt in einer besten Innenstadtlage von Ettlingen mitten in der stark frequentierten Fußgängerzone. Die Umgebung ist geprägt von zahlreichen Geschäften, Gastronomie und Dienstleistern sowie dem beliebten Wochenmarkt.

🛍️ Fußgängerzone mit Boutiquen, Wochenmarkt, Cafés & Restaurants, Banken und Dienstleistungen, Stadtverwaltung, usw.
🅿️ Wenige Schritte zu Parkmöglichkeiten entlang der Pforzheimer Straße sowie zum Parkhaus Neuer Markt
🚉 Hervorragende Anbindung an den Stadtbahnhof Ettlingen (S1/S11 Richtung Karlsruhe & Albtal)
🚗 Gute Erreichbarkeit über die B3 und die nahegelegene A5 & A8
🏙️ Ettlingen – attraktive Mittelstadt im direkten Einzugsbereich von Karlsruhe

Die dargestellte Position der Immobilie ist nur eine ungefähre Angabe.

Direktanfrage

* Pflichtangaben
 SSL-verschlüsselt
WordPress Cookie Plugin von Real Cookie Banner