Zwei zentral gelegene Büro- und Praxiseinheiten in Ettlinger Ärzte- und Dienstleistungszentrum

76275 Ettlingen, Bürofläche zum Kauf

Referenz

Dieses Objekt wurde bereits erfolgreich vermittelt.

Objekt­beschreibung

Beschreibung

Zwei auf einen Streich:
Selber Nutzen und gleichzeitig Vermieten? Hier geht beides!

1. Frei verfügbare Gewerbeeinheit (Teileinheit Nr. 19) für das eigene Business oder zum Vermieten
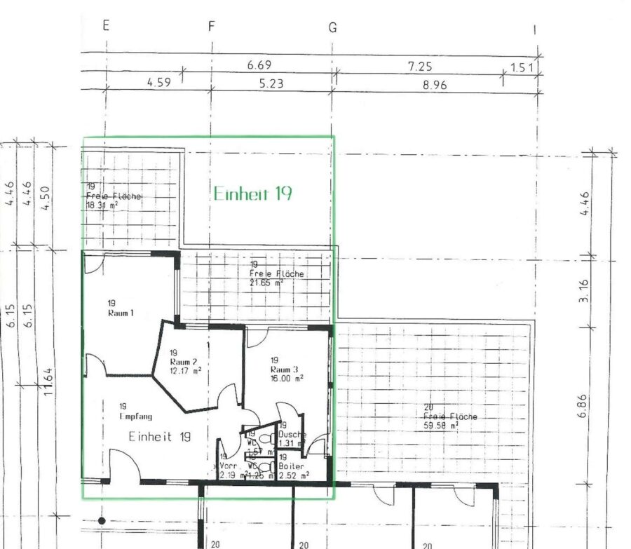
Die attraktiven Büro- bzw. Praxisräume sind 2023 renoviert worden und bieten aktuell eine nutzbare Gewerbefläche von etwa 81 m² (zzgl. Terrasse). Sie befinden sich im 2. OG eines gemischt genutzen Gebäudes, das als Ärzte- und Dienstleistungszentrum mit Praxen, Apotheke, Bäckerei mit Stehcafé und div. Geschäften sehr gut frequentiert wird. Aufzug vorhanden.

Da die Trennwände häufig in Leichtbauweise erstellt worden sind, hat es je nach Nutzerbedarf immer wieder Anpassungen der Zimmer gegeben. Die Aufteilung ist somit flexibel und besteht aus folgenden Räumen:
Empfangsbereich, 3 Büros / Praxisräume (davon einer mit Dusche), getrennte Damen- und Herren-WCs mit Vorraum, 2 Terrassenbereiche.

Folgen Sie unserem 360°-Rundgang für die Einheit Nr. 19
https://my.matterport.com/show/?m=LQHCQCV4jZm
und erleben Sie diese Geschäftsräume live vor Ort bei einer individuellen Besichtigung

2. Vermietete Artzpraxis (Teileinheit Nr. 18; ohne Innenaufnahmen) mit lukrativer Rendite
Die schon seit langem vermietete Arztpraxis nutzt eine Fläche von rund 171 m² (zzgl. Terrasse), schließt sich nahtlos an die Einheit Nr. 18 an und verfügt über folgendes Raumprogramm:
Rezeption, Flur, Wartezimmer, 2 Sprechzimmer, div. Zimmer für EKG / Röntgen / Blutabnahme / Allergie / Dunkelkammer / Archiv, Personalraum, Patienten-WC, Personal-WC

Wichtiger Hinweis
Der getrennte Erwerb einer einzelnen Einheit ist ebenfalls möglich. Hierbei gibt es folgendes zu beachten:
Bei der derzeitigen Nutzung ist die Teileinheit Nr. 18 (Arztpraxis) baulich mit der Teileinheit Nr. 19 verbunden und ragt in den Bereich der Einheit Nr. 19 hinein. Ohne Berücksichtigung der Terrassenflächen verfügt die Arztpraxis Nr. 18 dadurch über eine Mehrfläche von ca. 49 m² gegenüber den Angaben des Teilungsplans.

Ein Rückbau der beiden Einheiten gem. des Teilungsplans ist bei Leerstand sicherlich möglich. Aber auch das Integrieren zu einer einzigen, gemeinschaftlich genutzten Einheit bzw. eine Neuaufteilung ist vorstellbar.

Flächen-Vergleich (ca.-Angaben, ohne Terrassen):
Einheit 18: gem. IST-Plan 171 m², gem. Teilungsplan 122 m²
Einheit 19: gem. IST-Plan 81 m², gem. Teilungsplan 130 m²
Einheit 18 + 19 gesamt: 252 m²

Terrassenflächen (ca.-Angaben):
Einheit 18: gem. IST-Plan 65 m², gem. Teilungsplan 46 m²
Einheit 19: gem. IST-Plan 40 m², gem. Teilungsplan 67 m²
Einheit 18 + 19 gesamt: IST-Plan 105 m², gem. Teilungsplan 113 m²

Ausstattung

Einheit Nr. 19
- 2023 neu renoviert
- Empfangsbereich mit Teeküche und Laminatboden
- Alle anderen Räume gefliest
- 2 Dachterrassen
- Terrassentüren und Fenster mit manuellen Rollläden
- Duschkabine
- 2 WCs mit Waschvorraum
- Aufzug

Sonstige Informationen

Verkaufspreis Gewerbeeinheiten Nr. 18 und 19: € 397.000 inkl. Teeküche

Monatliches Hausgeld Nr. 18
inkl. Zuführung zu Instandhaltungsrücklage gem. aktueller Nutzung: € 590,-
(Stand Wirtschaftsplan 2024)

Monatliches Hausgeld Nr. 19
inkl. Zuführung zu Instandhaltungsrücklage gem. aktueller Nutzung: € 360,-
(Stand Wirtschaftsplan 2024)

Besichtigung: nach vorheriger Terminabsprache

Die Vermittlungsprovision beträgt für den Käufer 4,76 % vom beurkundeten Kaufpreis inkl. MwSt. Ferner dürfen wir auch für den Eigentümer provisionspflichtig tätig sein.

Die Objektdaten basieren auf Verkäuferinformationen. Alle Angaben ohne Gewähr.

Energieausweisart: Verbrauchsausweis
Gebäudetyp: Wohngebäude
Fiktives Baujahr laut Gutachten: 1987
Baujahr laut Energieausweis: 1994
Baujahr Wärmeerzeuger: 1994
Heizungsart: Zentralheizung
Befeuerung: Gas
Energiekennwert: 111,2 kWh/(m²*a)
Energieeffizienzklasse: D
Datum Energieausweis: 30.10.2018
Gültig bis: 30.10.2028

Lage

Sehr bekannte Gewerbe- und Dienstleistungsadresse in zentrumsnaher Lage von Ettlingen ca. 8 km zum Wirtschaftsstandort Karlsruhe und nur wenige Kilometer zur A5 / A8. Öffentliche Parkplätze um das Gebäude vorhanden.

Zur S-Bahnhaltestelle "Erbprinz" und in die Ettlinger Innenstadt ca. 5 - 7 Gehminuten, nächste Bushaltestelle "Eichendorffgymnasium" nur wenige Schritte entfernt.

Die dargestellte Position der Immobilie ist nur eine ungefähre Angabe.

WordPress Cookie Plugin von Real Cookie Banner